REQUEST A TOUR If you would like to see this home without being there in person, select the "Virtual Tour" option and your agent will contact you to discuss available opportunities.
In-PersonVirtual Tour

$ 8,600,000
Est. payment | /mo
$ 8,600,000
Est. payment | /mo
Key Details
Property Type Commercial
Sub Type Land
Listing Status Active
Purchase Type For Sale
Subdivision 611 - L'Orignal
MLS Listing ID X13012404
Tax Year 2025
Property Sub-Type Land
Property Description
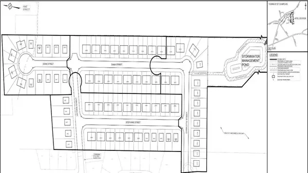
Prime 114-unit residential development opportunity, located near Highway 117 in L'Orignal, approximately 1 hour from Montreal and Ottawa. Preliminary subdivision approval in place for 30 single-family homes and 84 semi-detached units. Rare opportunity for a quick-start project in a growing corridor. The site has undergone extensive engineering review and approvals, including servicing, stormwater management, and supporting technical studies, positioning the project for execution. Note: The exact boundaries and area will be confirmed by a final survey. Located approximately one hour from Ottawa and Montreal, and minutes from key amenities including Walmart and Canadian Tire. (HST is in addition to the sale price.)
Location
State ON
County Prescott And Russell
Area Prescott And Russell
Zoning R2, R2-h
Exterior
Community Features Major Highway
Utilities Available Available
Others
ParcelsYN No
Listed by PMML INC.





